Verkocht:Groot Berkenbos 24, 1974 TB IJmuiden - Foto
Verkocht
+35

Groot Berkenbos 24 1974 TB IJmuiden

  • Woonhuis
  • 4 kamers
  • 3 slaapkamers
  • 2 badkamers
  • Bouwjaar 2005
  • 77 m² perceeloppervlakte
  • 126 m² gebruiksoppervlakte
  • Gestoffeerd
  • A+ Energielabel A+

Beschrijving

Wonen in de duinen, wakker worden en er loopt een hert langs het terras en dan ook nog een heerlijk licht en ruim instapklaar huis... Is dit waar je al een tijdje van droomt? Wacht niet langer en wie weet wordt deze unieke woning JOUW nieuwe HUIS!

Deze ruime, luxe en energiezuinige (A+) SPLIT-LEVEL-TUSSENWONING met zonnig duinterras op het Noord-Westen, is gelegen in een rustige doodlopende straat, aan de rand van de duinen, nabij strand en zee. Door de niveauverschillen en de hoge raampartijen heeft de woning een verrassende, speelse indeling (4 woonlagen!) met een bijzondere lichttoetreding door de vele raampartijen. Bijna alle wanden zijn strak afgewerkt met stucwerk.

Dit instapklare woonhuis ligt op loop- en/of fietsafstand van de duinen, het strand, Nationaal Park Zuid-Kennemerland, Bloemendaal, Haarlem en Zandvoort, maar ook op loopafstand van het winkelcentrum met diverse supermarkten, (vers)winkels en opstapplaatsen voor het openbaar vervoer met (snel)verbindingen naar Haarlem, Amsterdam en Heemskerk. De diverse uitvalswegen zorgen voor een goede verbinding naar bijvoorbeeld Amsterdam, Haarlem en Alkmaar. In het nabij gelegen Nationaal Park Zuid-Kennemerland kunt u heerlijk fietsen of wandelen. Op het strand (IJmuiderslag) is het o.a. mogelijk om te (kite)surfen.

In IJmuiden en in de nabijgelegen dorpskernen van de gemeente Velsen bevinden zich diverse basis- en middelbare scholen, kinderopvang, speeltuinen, zwembad en sportaccommodaties.

Zie jij jezelf hier al wonen? Wacht dan niet langer en neem snel contact met ons op – jouw droomplek wacht op je!

Bouwjaar: 2005
Woonoppervlakte ca. 126 m²
Gebouwgebonden buitenruimte: ca. 20 m²
Overige inpandige bergruimte: ca. 22 m²
Inhoud: 522 m³

Indeling

Parterre (level 1):
Entree, hal, meterkast (10 groepen, 3 aardlekschakelaars en 1 extra groep voor de zonnepanelen), zwevend toilet met fonteintje, multifunctionele riante berging met wasmachine- en drogeraansluiting en eventueel ruimte voor een (thuis)werkplek met toegang tot een grote kelderruimte. Deze is nu in gebruik als bergruimte. Vaste trap naar de 1e verdieping.

Eerste verdieping

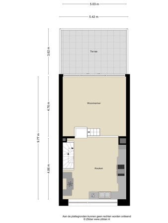
Woonkeuken (level 3, 1e verdieping):
Ruime zwarte woonkeuken voorzien van inbouwspotjes, een Amerikaanse koel-vriescombinatie met ijsblokjesmachine, een 3M waterkoker, diverse inbouwapparatuur waaronder een vaatwasser, Boretti 5-pits gasoven en afzuigkap, laminaatvloer met vloerverwarming. Enkele traptreden vanuit de woonkeuken naar beneden volgt de woonkamer.

Woonkamer (level 2):
Heerlijke ruime woonkamer met stalen zwarte balustrade en waanzinnige trap, deze trap is een echte eyecatcher! Verder heeft de woonkamer een uitstekende lichtinval door grote raampartijen en een prachtig uitzicht, laminaatvloer met vloerverwarming, hoog plafond en schuifpui naar zonnig duinterras met elektrisch bedienbaar zonnescherm. Op dit terras waan je je echt in de natuur!

Tweede verdieping

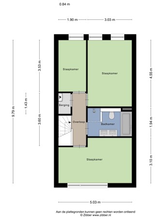
Slaapetage (level 4, 2e verdieping):
Overloop, ruimte met cv-ketelopstelling, mechanische ventilatie-unit en omvormer ten behoeve van de zonnepanelen (maar liefst 12 stuks), aan de achterzijde bevinden zich twee slaapkamers, waaronder één grote en één kleinere slaapkamer. De masterbedroom bevindt zich aan de voorzijde en is voorzien van een elektrische rolluik, moderne badkamer met inloopdouche, ligbad, dubbele wastafelmeubel, tweede toilet, designradiator, spiegel met verlichting en verwarming.

Balkon

Het zonnige duinterras van circa 20 m² is gelegen op het Noord-Westen.

Bijzonderheden

2024: Screens terraszijde, nieuwe voordeur (Kegro), laadpaal (EVhub type 2 - 16A / 12 meter laadkabel);
2023: Schilderwerk buitenzijde voor & achter;
2022: Trap custom laten ontwerpen (van keuken naar woonkamer), stalen zwarte balustrade, laten plaatsen van 12 zonnepanelen;
2021: Keuken laten wrappen, nieuwe Siemens vaatwasser, nieuwe afzuigkap, automatische gordijnbediening, nieuw badkamermeubel, nieuwe laminaatvloer keuken & woonkamer, nieuwe vloer berging, hal en toiletruimte.

- energielabel A+;
- 12 zonnepanelen;
- oplaadpunt elektrische auto;
- er zijn tussen de woningen duinen aangelegd (geeft vrij gevoel);
- geheel geïsoleerde woning met hardhouten- en kunststof kozijnen voorzien van HR++ beglazing;
- de woning ligt op loopafstand van het strand en de duinen en ook winkels en openbaar vervoer zijn op steenworpafstand te vinden!

Kaart

Kenmerken

Overdracht

Referentienummer
00035
Vraagprijs
€ 495.000,- k.k.
Inrichting
Ja
Inrichting
Gestoffeerd
Status
Verkocht
Aanvaarding
In overleg
Aangeboden sinds
Vrijdag 13 juni 2025
Laatste wijziging
Dinsdag 8 juli 2025

Bouw

Type object
Woonhuis, eengezinswoning, tussenwoning
Soort bouw
Bestaande bouw
Bouwperiode
2005
Dakbedekking
Bitumen
Type dak
Platdak
Keurmerken
Energie prestatie advies
Isolatievormen
Volledig geïsoleerd

Oppervlaktes en inhoud

Perceeloppervlakte
77 m²
Woonoppervlakte
125,5 m²
Inhoud
522 m³
Oppervlakte overige inpandige ruimten
21,9 m²
Oppervlakte gebouwgebonden buitenruimte
20,2 m²

Indeling

Aantal bouwlagen
3
Aantal kamers
4 (waarvan 3 slaapkamers)
Aantal badkamers
2

Locatie

Ligging
Aan rustige weg
Beschutte ligging
Vrij uitzicht

Tuin

Type
Zonneterras
Hoofdtuin
Ja
Oriëntering
Noord west
Staat
Prachtig aangelegd

Energieverbruik

Energielabel
A+

CV ketel

CV ketel
Remeha Avanta 35C
Warmtebron
Gas
Bouwjaar
2015
Eigendom
Eigendom

Uitrusting

Warm water
CV-ketel
Verwarmingssysteem
Centrale verwarming
Vloerverwarming (gedeeltelijk)
Ventilatie methode
Mechanische ventilatie
Natuurlijke ventilatie
Badkamervoorzieningen Badkamer 1
Douche
Dubbele wastafel
Toilet
Badkamervoorzieningen Badkamer 2
Dubbele wastafel
Inloopdouche
Toilet
Tuin aanwezig
Ja
Heeft een schuifpui
Ja
Heeft ventilatie
Ja

Kadastrale gegevens

Kadastrale aanduiding
IJmuiden L 6059
Perceeloppervlakte
77 m²

Gratis waardebepaling

Benieuwd naar de waarde van jouw woning? Bij Uniek Makelaardij bieden we een gratis waardebepaling aan om je inzicht te geven in de huidige marktwaarde van jouw woning.

Nu aanvragen