Verkocht:Rijksstraatweg 62, 1964 LK Heemskerk - Foto
Verkocht
+29

Rijksstraatweg 62 1964 LK Heemskerk

  • Woonhuis
  • 3 kamers
  • 2 slaapkamers
  • Bouwjaar 1925
  • 125 m² perceeloppervlakte
  • 74 m² gebruiksoppervlakte
  • Gestoffeerd
  • A Energielabel A

Beschrijving

Wonen in een heerlijke tussenwoning waar je zonder klussen zo in kunt trekken? Deze recent volledig gerenoveerde woning is energieneutraal en gasloos. Met energielabel A, een ideale ligging en een flexibele indeling biedt deze woning alles wat je nodig heeft voor een comfortabel en duurzaam thuis.

Je bevindt je op steenworp afstand van het wondermooie duinreservaat en de uitgestrekte stranden van zowel Heemskerk, Wijk aan Zee en Castricum. In de directe nabijheid kun je eindeloos genieten van de zee, het zand en de natuurlijke schoonheid van de omgeving. Tevens ligt de woning dicht bij het bruisende centrum van Heemskerk met vele gezellige restaurants en winkels.

Omdat de keuken een heel persoonlijke keuze is, is ervoor gekozen om deze nog niet te plaatsen, zodat de koper deze volledig naar eigen wens kan kiezen. Alle aansluitingen zijn reeds voorbereid aan de voorkant van de woning; de nieuwe keuken kan hier direct geplaatst worden. Aan de achterzijde vind je de tuin op het oosten, perfect voor uw ochtendkoffie in de zon.

Parkeren is nooit een probleem, met ruime parkeermogelijkheden vlakbij de woning.

Charmant wonen met comfort en duurzaamheid? Het kan jouw waarheid worden!

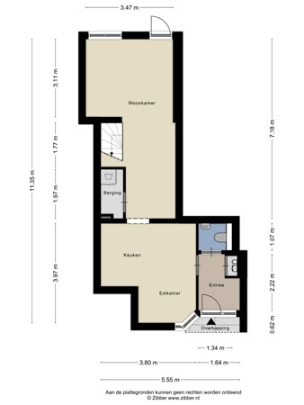
Indeling

Loop je mee?
Begane grond:
Je komt binnen via de entree, daar bevinden zich de ruime hal, meterkast en vanuit de hal is er toegang tot het zwevend toilet met fonteintje en de woonkamer met open keuken (dient deze nog geplaatst te worden), de woonkamer is opgesplitst in een woon- en eetgedeelte. In het woongedeelte bevindt zich ook de aparte wasruimte deze bevindt zich onder de trap.

Eerste verdieping

Via de open trapopgang in de woonkamer kom je op de eerste verdieping. Via de lichte overloop met veel daglicht zijn de twee slaapkamers en de badkamer te bereiken, de geheel betegelde badkamer is voorzien van een wastafel, douchecabine, tweede toilet en elektrische lichtkoepel.

Tweede verdieping

Via een vlizotrap is de bergzolder bereikbaar. Hier bevinden zich de elektrische ketel en boiler. Tevens is er genoeg opbergmogelijkheid.

Tuin

De tuin bevindt zich aan de achterzijde van de woning, deze is gelegen op het oosten.

Bijzonderheden

- Instapklaar;
- Energielabel A;
- Oplevering direct;
- Recent gerenoveerd;
- Energiezuinig en gasloos;
- Voldoende parkeermogelijkheden;
- De wanden en het plafond zijn glad afgewerkt.

Kaart

Kenmerken

Overdracht

Referentienummer
00012
Vraagprijs
€ 375.000,- k.k.
Inrichting
Ja
Inrichting
Gestoffeerd
Status
Verkocht
Aanvaarding
Direct
Aangeboden sinds
Dinsdag 17 december 2024
Laatste wijziging
Maandag 23 juni 2025

Bouw

Type object
Woonhuis, eengezinswoning, geschakelde woning
Soort bouw
Bestaande bouw
Bouwperiode
1925
Dakbedekking
Bitumen
Dakpannen
Type dak
Samengesteld
Keurmerken
Energie prestatie advies
Isolatievormen
Dubbel glas
HR-glas
Volledig geïsoleerd

Oppervlaktes en inhoud

Perceeloppervlakte
125 m²
Woonoppervlakte
73,9 m²
Inhoud
274 m³
Oppervlakte overige inpandige ruimten
3,4 m²
Oppervlakte gebouwgebonden buitenruimte
1,2 m²

Indeling

Aantal bouwlagen
2
Aantal kamers
3 (waarvan 2 slaapkamers)

Tuin

Type
Achtertuin
Oriëntering
Oosten

Energieverbruik

Energielabel
A

Uitrusting

Warm water
Elektrische boiler
Verwarmingssysteem
Elektrische verwarming
Ventilatie methode
Mechanische ventilatie
Natuurlijke ventilatie
Tuin aanwezig
Ja
Heeft ventilatie
Ja

Kadastrale gegevens

Kadastrale aanduiding
Heemskerk D 11425
Perceeloppervlakte
125 m²

Gratis waardebepaling

Benieuwd naar de waarde van jouw woning? Bij Uniek Makelaardij bieden we een gratis waardebepaling aan om je inzicht te geven in de huidige marktwaarde van jouw woning.

Nu aanvragen