Verkocht:Laan van Blois 32, 1943 MK Beverwijk - Foto
Verkocht
+32

Laan van Blois 32 1943 MK Beverwijk

  • Appartement
  • 3 kamers
  • 2 slaapkamers
  • Bouwjaar 1958
  • 82 m² gebruiksoppervlakte
  • Gestoffeerd
  • E Energielabel E

Beschrijving

Dit prachtig gelegen 3-kamerappartement aan de Laan van Blois 32 bevindt zich op de vierde en tevens hoogste verdieping van een appartementencomplex in de geliefde woonwijk Warande in Beverwijk. Het appartement biedt een combinatie van rustig wonen en stadsleven, met alle voorzieningen binnen handbereik. Dit appartement is ideaal voor starters of een klein gezin dat op zoek is naar een ruime, lichte woonruimte in een rustige maar centraal gelegen buurt.

De ligging van het appartement is fantastisch, met park Westerhout, het strand van Wijk aan Zee, de duinen, het NS-station, winkelcentrum Plantage en diverse horecagelegenheden op fietsafstand. De wijk Warande staat bekend om het vele groen, waterpartijen en de villa's aan de Brederodelaan en er zijn 2 basisscholen in de buurt. Bovendien zorgen de nabijgelegen uitvalswegen voor een uitstekende verbinding met Alkmaar, Amsterdam (Schiphol) en Haarlem.

Bouwjaar: 1958
Woonoppervlakte ca. 82 m²
Gebouwgebonden ruimte: ca. 6 m²
Externe bergruimte: ca. 11 m²
Inhoud: 269 m³

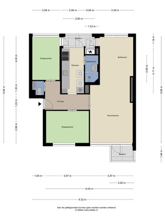
Indeling

Vierde verdieping:
Bij binnenkomst via de hal/entree heb je toegang tot verschillende vertrekken, waaronder de ruime woonkamer, de slaapkamers, de keuken en het toilet met fonteintje. De woonkamer heeft grote ramen die veel licht binnenlaten en biedt een prachtig vrij uitzicht over waterpartijen en een groene omgeving. Vanuit de woonkamer is er toegang tot het eerste balkon aan de voorzijde, waar je heerlijk kunt genieten van het uitzicht. De keuken is voorzien van diverse inbouwapparatuur, te weten: afzuigkap, 4-pits gaskookplaat en een oven. Ook bevinden zich hier de witgoedaansluitingen en geeft de keuken toegang tot het tweede balkon aan de achterzijde. Vanuit de keuken bereik je ook de badkamer die is voorzien van een douchecabine, wastafel en spiegelkast. Het appartement beschikt over twee ruime slaapkamers, waarvan momenteel één (slaap)kamer als walk-in-closet fungeert.

Balkon

Ja, deze balkons bevinden zich aan de voor en achterzijde van het appartement, gelegen op het Oosten en Westen.

Bijzonderheden

- Vierde en bovenste verdieping;
- Vrij uitzicht over groen en water;
- Eigen ruime berging in de onderbouw;
- Twee balkons, één op het Oosten en één op het Westen;
- Gelegen nabij park Westerhout, strand en duinen, treinstation en diverse winkels;
- Het appartement is vrijwel geheel voorzien van kunststof kozijnen met isolatieglas.

Kaart

Kenmerken

Overdracht

Referentienummer
00008
Vraagprijs
€ 300.000,- k.k.
Servicekosten
€ 198,-
Inrichting
Ja
Inrichting
Gestoffeerd
Status
Verkocht
Aanvaarding
In overleg
Aangeboden sinds
Vrijdag 6 december 2024
Laatste wijziging
Maandag 23 juni 2025

Bouw

Type object
Appartement, portiekflat
Woonlaag
4e woonlaag
Soort bouw
Bestaande bouw
Bouwperiode
1958
Dakbedekking
Bitumen
Type dak
Platdak
Keurmerken
Energie prestatie advies
Isolatievormen
Grotendeels dubbel glas
HR-glas

Oppervlaktes en inhoud

Woonoppervlakte
81,5 m²
Inhoud
269 m³
Oppervlakte externe bergruimte
10,6 m²
Oppervlakte gebouwgebonden buitenruimte
6,4 m²

Indeling

Aantal bouwlagen
1
Aantal kamers
3 (waarvan 2 slaapkamers)

Energieverbruik

Energielabel
E

CV ketel

CV ketel
Remeha Tzerra Plus 28c CW4
Warmtebron
Gas
Bouwjaar
2017
Eigendom
Eigendom

Uitrusting

Warm water
CV-ketel
Verwarmingssysteem
Centrale verwarming
Ventilatie methode
Natuurlijke ventilatie

Vereniging van Eigenaren

Ingeschreven bij de KvK
Ja
Jaarlijkse vergadering
Ja
Periodieke bijdrage
Ja
Reservefonds
Ja
Meer jaren onderhoudsplan
Ja
Onderhoudsverwachting
Ja
Opstal verzekering
Ja

Kadastrale gegevens

Kadastrale aanduiding
Wijk aan Zee en Duin B 8495
Omvang
Appartementsrecht of complex

Gratis waardebepaling

Benieuwd naar de waarde van jouw woning? Bij Uniek Makelaardij bieden we een gratis waardebepaling aan om je inzicht te geven in de huidige marktwaarde van jouw woning.

Nu aanvragen