Verkocht onder voorbehoud:Dinkelstraat 9, 1946 RA Beverwijk - Foto
Verkocht onder voorbehoud
+18

Dinkelstraat 9 1946 RA Beverwijk € 285.000,- k.k.

  • Appartement
  • 3 kamers
  • 2 slaapkamers
  • Bouwjaar 1958
  • 75 m² gebruiksoppervlakte
  • Gestoffeerd
  • D Energielabel D

Beschrijving

Dit gemoderniseerde hoek 3-kamerappartement op de derde verdieping biedt een ideale combinatie van comfort, stijl en licht. In de afgelopen jaren is het appartement grondig vernieuwd, waardoor het geheel een frisse en eigentijdse uitstraling heeft gekregen. Dankzij de doordachte indeling, met twee goed bemeten slaapkamers en een ruime woonkamer, is het een fijne plek om thuis te komen.

Een groot pluspunt zijn de twee balkons, gelegen aan zowel de voor- als achterzijde. Hierdoor kun je op elk moment van de dag van de buitenlucht en het zonlicht genieten. De moderne keuken en badkamer zijn met zorg afgewerkt en sluiten volledig aan bij de huidige woonwensen.

Kortom: een instapklaar appartement op een aantrekkelijke locatie, waar je zonder klussen direct kunt intrekken.

Gelegen op een praktische locatie; op loopafstand vind je scholen, winkels bij winkelcentrum 'Europaplein', sportfaciliteiten en het station van Heemskerk. Ook de duinen, zee en het strand zijn per fiets eenvoudig bereikbaar. En via de nabijgelegen uitvalswegen ben je zo in Haarlem, Alkmaar of Amsterdam.

Nieuwsgierig geworden? Kom snel een kijkje nemen en maak een afspraak via ons kantoor.

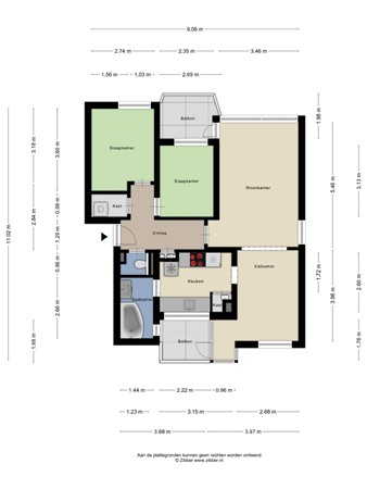
Woonoppervlakte: ca. 75 m²
Gebouwgebonden buitenruimte (balkon): ca. 9 m²
Externe bergruimte ca. 6 m²
Inhoud: ca. 247 m³

Indeling

Begane grond:
Hoofdentree met bellentableau, toegang tot het trappenhuis, de brievenbussen en de bergingen.

Derde verdieping:
Entree met meterkast (voorzien van 8 groepen, inclusief fornuisgroep en 2 aardlekschakelaars). Via de ruime hal zijn alle vertrekken bereikbaar. Er is een modern, zwevend toilet en een separate wasruimte met aansluiting voor witgoed. De woning beschikt over twee slaapkamers en een royale woonkamer met een sfeervol woon- en eetgedeelte, met toegang tot twee balkons aan zowel de voor- als achterzijde. De keuken is uitgerust met een inductiekookplaat, afzuigkap, vaatwasser, inbouwspotjes en de opstelling van de CV-ketel. De badkamer met schuifdeur is compleet ingericht met een ligbad voorzien van hand- en regendouche, een wastafelmeubel, elektrische kachel en inbouwspotjes.

Balkon

De balkons zijn gunstig gelegen op het noordoosten en zuidwesten, waardoor je zowel ’s ochtends als ’s avonds kunt genieten van de zon.

Bijzonderheden

2021: Nieuwe badkamer, nieuwe meterkast, vensterbank vernieuwd in de woonkamer en nieuwe radiatoren.
2022: Indeling keuken en keuken vernieuwd, nieuwe toilet met spotjes, nieuwe laminaatvloer (VT wonen) en grotendeels nieuw stucwerk.

- Energielabel D;
- Berging aanwezig;
- Instapklaar appartement;
- Aanvaarding in overleg, kan snel;
- Servicekosten: € 190,00 per maand;
- Twee balkons (noordoosten en zuidwesten);
- Grotendeels kunststof kozijnen met HR++ glas.
- Op loopafstand van het winkelcentrum Europaplein.

Kaart

Kenmerken

Overdracht

Referentienummer
00044
Vraagprijs
€ 285.000,- k.k.
Servicekosten
€ 190,-
Inrichting
Ja
Inrichting
Gestoffeerd
Status
Verkocht onder voorbehoud
Aanvaarding
In overleg
Aangeboden sinds
Dinsdag 9 december 2025
Laatste wijziging
Woensdag 31 december 2025

Bouw

Type object
Appartement, portiekflat
Woonlaag
3e woonlaag
Soort bouw
Bestaande bouw
Bouwperiode
1958
Dakbedekking
Bitumen
Type dak
Platdak
Keurmerken
Energie prestatie advies
Isolatievormen
HR-glas

Oppervlaktes en inhoud

Woonoppervlakte
74,8 m²
Inhoud
247 m³
Oppervlakte externe bergruimte
6,3 m²
Oppervlakte gebouwgebonden buitenruimte
8,8 m²

Indeling

Aantal bouwlagen
1
Aantal kamers
3 (waarvan 2 slaapkamers)

Energieverbruik

Energielabel
D

CV ketel

CV ketel
Intergas
Warmtebron
Gas
Bouwjaar
2012
Eigendom
Eigendom

Uitrusting

Warm water
CV-ketel
Verwarmingssysteem
Centrale verwarming
Ventilatie methode
Natuurlijke ventilatie

Vereniging van Eigenaren

Ingeschreven bij de KvK
Ja
Jaarlijkse vergadering
Ja
Periodieke bijdrage
Ja
Reservefonds
Ja
Opstal verzekering
Ja

Kadastrale gegevens

Kadastrale aanduiding
Wijk aan Zee en Duin C 736
Perceeloppervlakte
729 m²
Omvang
Appartementsrecht of complex

Media

Plattegronden

Gratis waardebepaling

Benieuwd naar de waarde van jouw woning? Bij Uniek Makelaardij bieden we een gratis waardebepaling aan om je inzicht te geven in de huidige marktwaarde van jouw woning.

Nu aanvragen